Домой Карта сайта Контакты
АКЦИЯ – электронные циркуляционные насосы со скидкой 50-60% по цене обычных
Насосное оборудование
Подписка 
 

                                                                                                      

 
 

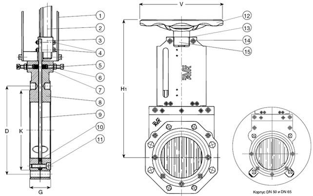
 Задвижки AVK гильотинная шиберная Серия: 702/10 (Сточные воды) 

 

Назначение:
Для воды и сточных вод с
температурой до макс. +70°С

Компоненты:
1. Стойка 6. Толкатель 11. Болт на корпус
2. Шток 7. Сальник уплотнения 12. Маховичок
3. Гайка из бронзы 8. Корпус 13. Шайба
4. Болт и гайка 9. Шибер 14. Болт
5. Болт сальника уплотнения 10. Прокладка на корпус 15. Подшипник

   Задвижка AVK гильотинная шиберная Серия: 702/10

[Image] Документация: [Image] 10-яя Гарантия на оборудование


 




Logo Lowara
Logo Vogel Pumpen
Logo Flygt
Logo Zilmet
Logo Avk

Вход в систему  
 
новый пользователь? 
Зарегистрироваться
 
Система Orphus