Домой Карта сайта Контакты
АКЦИЯ – электронные циркуляционные насосы со скидкой 50-60% по цене обычных
Насосное оборудование
Подписка 
 
 
 

Гидрант AVK пожарный подземный Серия: 35/40


 

Назначение:
Для воды


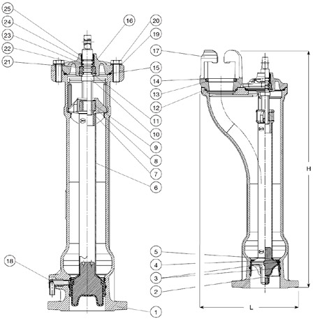
Перечень компонентов:
1. Корпус гидранта 11. Уплотнит. прокладка штока 19. Шайба
2. Седло 12. Кольцо кругл. сеч. 20. Болт крышки
3. Кольцо кругл. сеч. седла байонет. соединения 21. Воротник штока
4. Резиновое покрытие диска 13. Кольцо кругл. сеч. седла 22. Подшипник скольжения
5. Сердечник диска байонет. соединения 23. Кольцо кругл.сеч. штока
6. Стержень штока 14. Седло байонетн. соедин. 24. Кольцо кругл.сеч.подшипника
7. Шток 15. Кольцо кругл. сеч. крышки 25. Грязесъемное кольцо
8. Опора гайки штока 16. Крышка
9. Гайка штока 17. Байонетное соединение
10. Стопорное кольцо 18. Дренажная трубка


Гидрант AVK пожарный подземный Серия: 35/40

[Image] Документация: [Image] Гарантия на оборудование


 30.05.2008 Конструкторами AVK(Дания) был разработан пожарный гидрант специально для стран СНГ




Logo Lowara
Logo Vogel Pumpen
Logo Flygt
Logo Zilmet
Logo Avk

Вход в систему  
 
новый пользователь? 
Зарегистрироваться
 
Система Orphus