Домой Карта сайта Контакты
АКЦИЯ – электронные циркуляционные насосы со скидкой 50-60% по цене обычных
Насосное оборудование
Подписка 
 
 
 

Гидрант AVK пожарный подземный Серия: 19/989


Назначение:
Для воды и нейтральных жидкостей
с температурой макс. +70°С
Теплоизоляция необходима при
установке гидранта в зонах с
температурой 0°C и нижедля пожаротушения, питьевой воды и
забора воды для бытовых нужд макс.
T +40°C



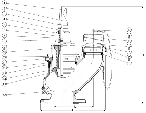
Перечень компонентов:
1. Насадка штока 13. Корпус
2. Шток 14. Фиксированный клапан
3. Болт 15. Вулканизированная резина
4. Кольцо сечения “О” 16. Дренажная пробка
5. Уплотнение штока 17. Втулка обжимная
6. Кольцо сечения “О” 18. Тросик
7. Кольцо сечения “О” 19. Пылезащитная крышка
8. Упорное кольцо 20. Выходной штуцер
9. Гайка фиксированного штока 21. Предохранительное устройство
10. Крышка корпуса 22. Винт с цилиндр. головкой
11. Винт с цилиндр. головкой 23. Кольцо сечения “О”
12. Кольцо сечения “О”
Ссыл. No
Противооблединительная система Масса
Дренажная пробка Авт. задвижка DN L H L1 кг
19-989-01001 19-989-31001 80 287 444 135 18
19/989:


Гидрант AVK пожарный подземный Серия: 19/989

[Image] Документация: [Image] Гарантия на оборудование


 30.05.2008 Конструкторами AVK(Дания) был разработан пожарный гидрант специально для стран СНГ




Logo Lowara
Logo Vogel Pumpen
Logo Flygt
Logo Zilmet
Logo Avk

Вход в систему  
 
новый пользователь? 
Зарегистрироваться
 
Система Orphus